Stéphanie HOUACINE Négociatrice
Télécharger la fiche
Exclusivité

viager maison

Bras-d'Asse (04270)
195 520 € Référence SH-1069-NP04

A propos de ce bien

Chez Hortense Viager, nous accompagnons les projets de vie en proposant des solutions équilibrées entre transmission, placement et valorisation immobilière.

En exclusivité, à Bras-d’Asse, vente en nue-propriété avec réserve d’usufruit au profit d’un homme de 69 ans. Ce charmant village provençal, situé entre Riez et Digne-les-Bains, séduit par son authenticité, son environnement naturel préservé et la quiétude de son cadre de vie.

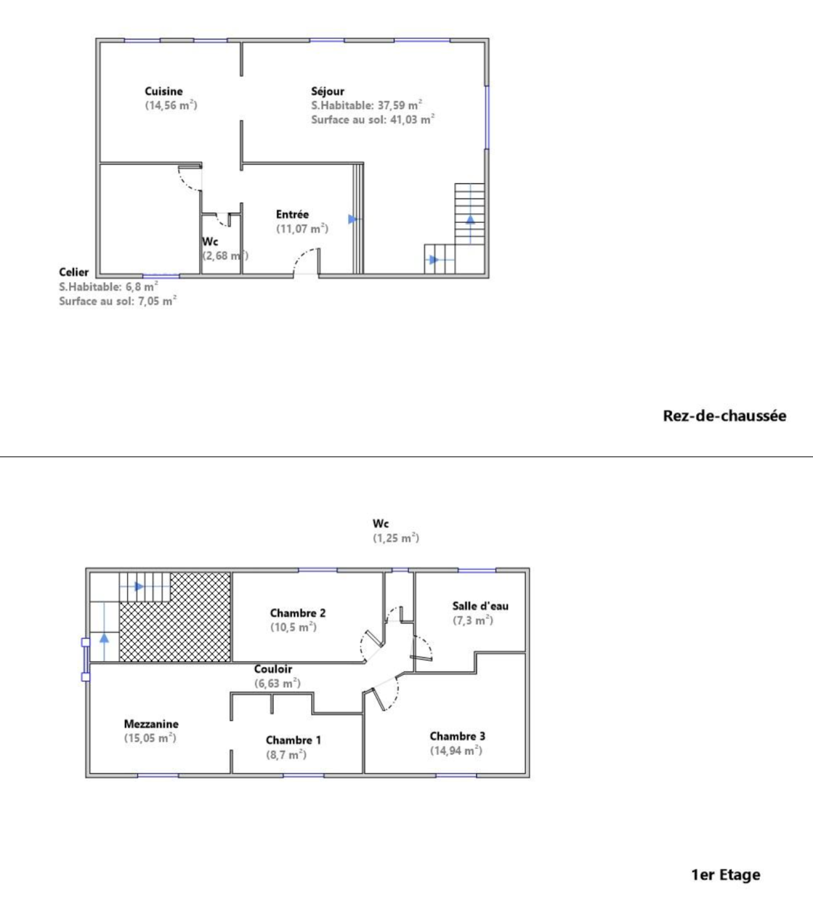
Édifiée sur une parcelle de plus de 1 000 m², cette bâtisse d’environ 140 m² se distingue par son charme et son potentiel.

Au rez-de-chaussée, une vaste pièce à vivre lumineuse avec cuisine ouverte constitue un espace convivial et chaleureux. À l’étage, quatre chambres confortables offrent de beaux volumes et une vue sur la campagne environnante.

Cette propriété, typique de la région, allie authenticité et fonctionnalité, tout en laissant la possibilité à l’acquéreur d’envisager, à terme, un projet de résidence principale ou secondaire de caractère.

Les données patrimoniales :

Valeur libre : 320 000 €
Prix de vente : 195 520 € HAI (soit 174 720 € hors frais d'agence)
Décote d’usufruit : 45,4 %

Une opportunité rare pour un investisseur patrimonial souhaitant allier placement immobilier sûr et valorisation à long terme, dans un cadre de vie apaisant et recherché.

Informations sur les risques naturels et miniers disponibles sur www.georisques.gouv.fr

Caractéristiques de ce bien

  • Surface 140 m²
  • carrez 140 m²
  • séjour 38 m²
  • 4 chambre(s)
  • 1 salle(s) d'eau
  • cuisine américaine (équipée)
  • Chauffage individuel : au sol (climatisation)
  • terrasse

Diagnostics énergétiques

Consommation énergétique
A B C D E F G
Emission de gaz à effet de serre
A B C D E F G

Montant estimé des dépenses annuelles d'énergie pour un usage standard est compris entre 2 510 € et 3 440 € . Prix moyens des énergies indexés sur les années 2021, 2022 et 2023 (abonnements compris).

Informations financières

Prix de vente honoraires TTC inclus 195 520 €
Prix de vente honoraires TTC exclus 174 720 €
Honoraires TTC à la charge acquéreur 11,9 %
Taxe foncière annuelle 455 €
Valeur vénale 320 000 €
Prix bouquet 195 520 €

Autour the property

  • Commerces et santé
  • Loisirs
  • Ecoles
  • Transports
  • Pratique

Calcul des mensualités

* Champs obligatoires