Stéphanie HOUACINE Négociatrice
Télécharger la fiche
Exclusivité

viager maison

Vaulx-en-Velin (69120)
45 400 € Référence SH-1064-VO69

A propos de ce bien

En exclusivité, située aux portes de Lyon, Vaulx-en-Velin séduit par son dynamisme et sa proximité immédiate des grands axes, des commerces et des transports.

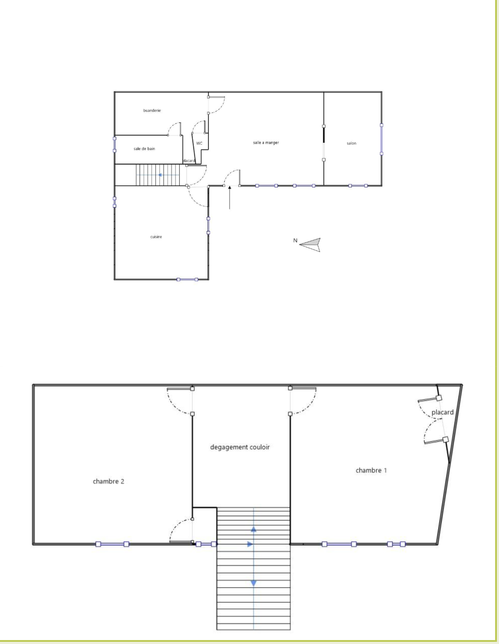
Dans un environnement calme et sans vis-à-vis, découvrez cette maison en copropriété horizontale très bien entretenue de 4 pièces principales, offrant un bel espace de vie lumineux avec accès direct à une courrette privative et un petit jardin.

Elle dispose actuellement de deux chambres à l’étage, et une troisième chambre est aisément aménageable au rez-de-chaussée, selon les besoins.
Un bien rare sur le secteur, fonctionnel, chaleureux et idéalement situé, proche de toutes les commodités.

Modalités financières :
Viager occupé
Occupante : femme de 79 ans
Valeur vénale libre : 220 000 €
Bouquet : 45 400 € HAI (soit 30 000 € net vendeur)
Rente mensuelle : 640 €

Chez Hortense Viager, nous défendons une approche éthique et humaine du viager.
Chaque projet est accompagné avec transparence, bienveillance et expertise, dans le respect des générations et des parcours de vie.

Les informations sur les risques auxquels ce bien est exposé sont disponibles sur le site www.georisques.gouv.fr

Caractéristiques de ce bien

  • Surface 90 m²
  • séjour 21 m²
  • 2 chambre(s)
  • 1 salle(s) d'eau
  • cuisine séparée (équipée)
  • Chauffage individuel : chaudière (gaz)
  • exposition Sud-Ouest
  • 1 côté(s) mitoyen(s)
  • terrasse

Diagnostics énergétiques

Consommation énergétique
A B C D E F G
Emission de gaz à effet de serre
A B C D E F G

Logement à consommation énergétique excessive : classe G

Montant estimé des dépenses annuelles d'énergie pour un usage standard est compris entre 3 420 € et 4 680 € . Prix moyens des énergies indexés sur les années 2021, 2022 et 2023 (abonnements compris).

Informations financières

Prix de vente honoraires TTC inclus 45 400 €
Rente mensuelle 640 €
Valeur vénale 220 000 €
Prix bouquet 45 400 €

Informations de copropriété

Copropriété Oui
Plan de sauvegarde Non
Statut du syndic Pas de procédure en cours

Autour the property

  • Commerces et santé
  • Loisirs
  • Ecoles
  • Transports
  • Pratique

Calcul des mensualités

* Champs obligatoires